東京ドームホテル

ご宿泊
レストラン
&バー
ウェディング
交通アクセス
メニュー 閉じる
TEL.03-5805-2111(代表)

フロア別のご案内

フロアガイド

34 23

22 9

3

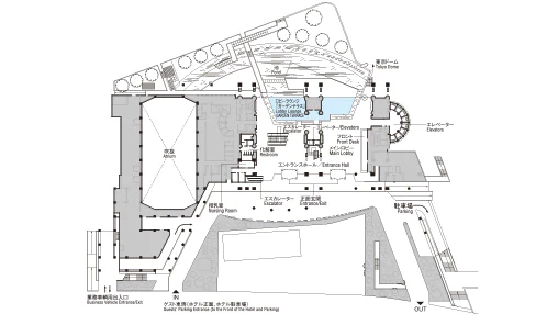
ブッフェレストラン 東京ドームシティ連絡通路※1

2

ウェディングサロン コンビニエンスストア

1

フロント ロビーラウンジ

B2 B3

  • レストラン&バー
  • ウェディング&バンケット
  • 客室
  • その他
  1. 3階に東京ドームシティへの連絡通路がございます。

施設案内メニュー

フロアガイド

ショップ

サロン

その他の施設

CONTACTお問い合わせ

ご宿泊やレストランに関するご予約など、
ご不明な点がございましたら
お気軽にお問い合わせください。
また、よくあるご質問もご利用ください。

よくあるご質問

お電話でのご予約・お問い合わせ

TEL.03-5805-2111(代表)

pagetop